Plan Number:
 |
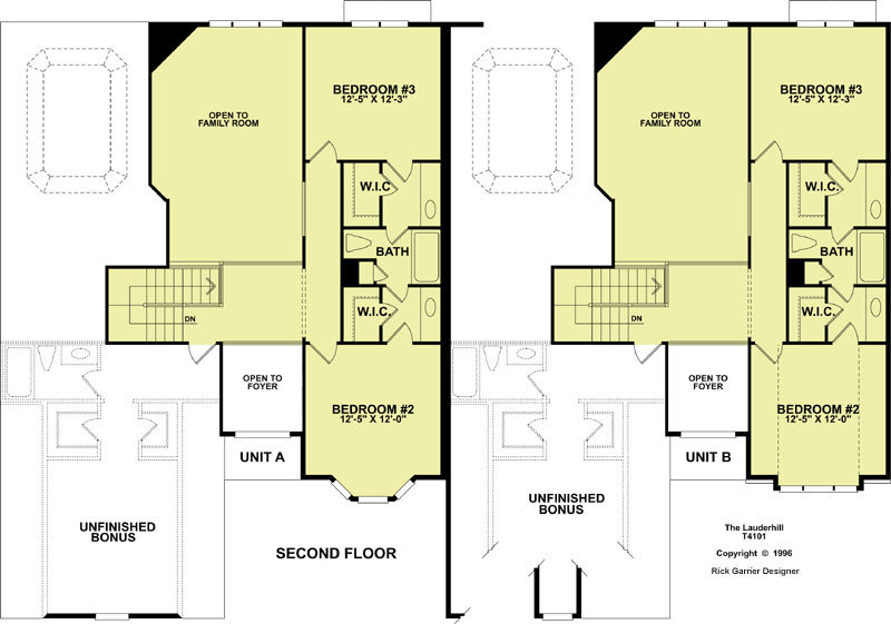
SD-1677-92
 |
Description: 2 Unit Townhouse Design.
Notice: Single Use License Required Prior to Shipping.
*Ask about our Multifamily Developer Special Incentives.
Multi-Use License Available.
CAD Files Available Upon Purchase of Unlimited Use License. Call for Pricing. 877.737.5267
High Quality Artwork Provided With Each Purchase For Your Advertising and Marketing.
|
Bedrooms - Per Unit: |
3 |
Baths - Per Unit: |
2 |
Width - Building: |
82' 0" |
Depth - Building: |
57' 0" |
Main Ceiling Height: |
9 |
Roof Pitch: |
8 in 12 |
Secondary Roof Pitch: |
None |
Floors - Per Unit: |
2 - 2 |
Floors - Per Building: |
2 |
1st Floor - Per Unit:
1574 - 1574sq. ft. |
2nd Floor - Per Unit:
638 - 638sq. ft. |
Total Living - Building:
2212
sq. ft. |
Total Area - Building:
4424 sq. ft. |
Garage Bays: |
2 |
Garage Type: |
Attached |
Foundation: Slab |
Options: Mirror Reading Reverse, Color Rendering, Modifications |
|

 |