Plan Number:
 |
SD-5937-162
 |
| Description: *Standard Frame Construction
*Craftsman Style
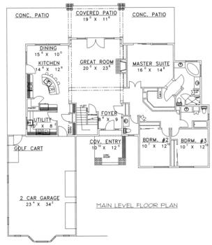
*Great Room With Fireplace
*Island In Kitchen
*Walk-In Kitchen Pantry
*Laundry Room
*Golf Cart Area In Garage
*Full Master Bathroom With Spa Tub And Vanity
*Covered Patio
*Covered Entry Porch
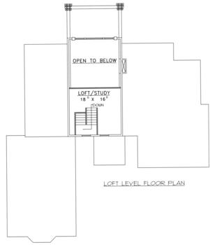
*Loft
*Study
*2-Car Garage
|
| Bedrooms : |
3 |
| Baths : |
2.5 |
| Width : |
70' 6" |
| Depth : |
80' 10" |
| Main Ceiling Height: |
9 |
| Other Ceiling Height: |
11 |
| Roof Pitch: |
6 in 12 |
| Secondary Roof Pitch: |
None |
| Floors : |
2 |
| 1st Floor :
|
2231 sq. ft. |
| 2nd Floor :
|
220 sq. ft. |
| Total Living :
|
2451 sq. ft. |
| Total Area :
|
3298 sq. ft. |
| Garage Bays: |
2 |
| Garage Type: |
None |
Foundation: Slab |
Options: Reproducible / PDF, Right Reading Reverse, Mirror Reading Reverse, Color Rendering, Modifications, CAD Files |
| |

 |
|
|