Plan Number:
 |
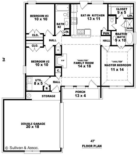
SD-6063-58
 |
| Description: |
| Bedrooms : |
3 |
| Baths : |
2 |
| Width : |
48' 0" |
| Depth : |
54' 0" |
| Main Ceiling Height: |
9 |
| Roof Pitch: |
12 in 12 |
| Secondary Roof Pitch: |
8 in 12 |
| Floors : |
1 |
| 1st Floor :
|
1234 sq. ft. |
| Total Living :
|
1234 sq. ft. |
| Total Area :
|
1744 sq. ft. |
| Garage Bays: |
2 |
| Garage Type: |
Attached |
Foundation: Slab |
Options: Reproducible / PDF, Right Reading Reverse, Mirror Reading Reverse, Color Rendering, Modifications |
| |

 |
|
|