Plan Number:
 |
SD-9681-212
 |
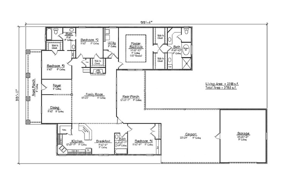
Description: Southern Louisiana Acadian House Plan with the classic front porch and four pillars. The floor plan is open with a spacious family room, formal dining room, breakfast area and kitchen. The kitchen has a large angled island with a bar, a corner sink looking out into the front of your lot and walk in pantry. Moving to the master suite, one of four bedrooms, you will find a stunning recessed ceiling with his and her walk in closets. Past the closet you find your master bath with two vanities, whirlpool tub and separate shower. Two of the other bedrooms have walk in closets and are of good size. The forth is also good sized and could be used as a home office if desired. In the rear of the home plan you will find a two car carport with a large enclosed storage area that could be used to house another car or boat. You will find the Raven Southern Louisiana Acadian home plan a pleasure to live in. |
Bedrooms : |
4 |
Baths : |
3 |
Width : |
55' 11" |
Depth : |
99' 4" |
Main Ceiling Height: |
9 |
Other Ceiling Height: |
11 |
Roof Pitch: |
N/A |
Secondary Roof Pitch: |
None |
Floors : |
1 |
1st Floor :
|
2318 sq. ft. |
Total Living :
|
2318 sq. ft. |
Total Area :
|
3753 sq. ft. |
Garage Bays: |
2 |
Garage Type: |
Carport |
Foundation: Slab |
Options: Mirror Reading Reverse, Modifications |
|

 |
|
|