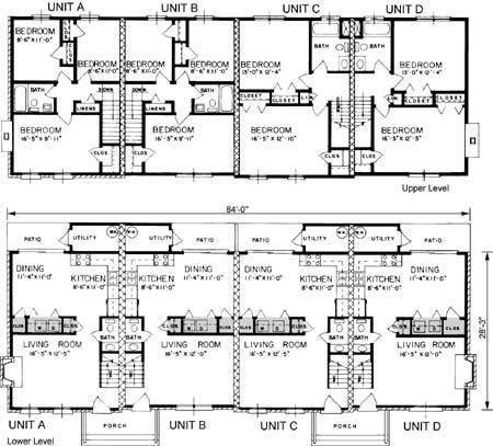
Plan Number:
 |
SD-1719-70
 |
| Description: Quadruplex townhouses with 2 and 3 bedroom units |
| Bedrooms - Per Unit: |
2 - 3 |
| Baths - Per Unit: |
1.5 |
| Width - Building: |
84' 0" |
| Depth - Building: |
28' 3" |
| Main Ceiling Height: |
8 |
| Roof Pitch: |
6 in 12 |
| Secondary Roof Pitch: |
4 in 12 |
| Floors - Per Unit: |
2 - 2 |
| Floors - Per Building: |
2 |
1st Floor - Per Unit:
580 - 598sq. ft. |
2nd Floor - Per Unit:
580 - 605sq. ft. |
Total Living - Building:
1160
sq. ft. |
Total Area - Building:
5290 sq. ft. |
| Garage Bays: |
0 |
| Garage Type: |
None |
Foundation: Slab, Crawl Space, Basement Additional Charge |
Options: Right Reading Reverse, Material List, Color Rendering, Modifications |
| |

 |