Plan Number:
 |
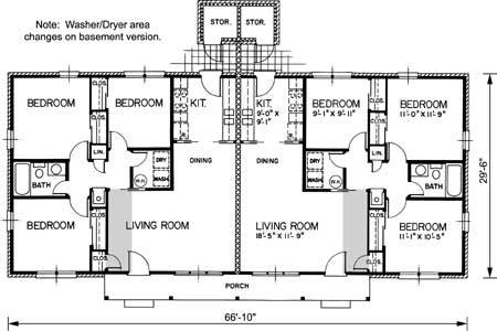
SD-1727-70
 |
| Description: Traditional duplex with three bedrooms per unit |
| Bedrooms - Per Unit: |
3 |
| Baths - Per Unit: |
1 |
| Width - Building: |
66' 10" |
| Depth - Building: |
29' 6" |
| Main Ceiling Height: |
8 |
| Roof Pitch: |
4 in 12 |
| Secondary Roof Pitch: |
4 in 12 |
| Floors - Per Unit: |
1 - 1 |
| Floors - Per Building: |
1 |
1st Floor - Per Unit:
978 - 978sq. ft. |
Total Living - Building:
978
sq. ft. |
Total Area - Building:
2172 sq. ft. |
| Garage Bays: |
0 |
| Garage Type: |
None |
Foundation: Slab, Crawl Space, Basement Additional Charge |
Options: Right Reading Reverse, Material List, Color Rendering, Modifications |
| |

 |