Plan Number:
 |
SD-3768-64
 |
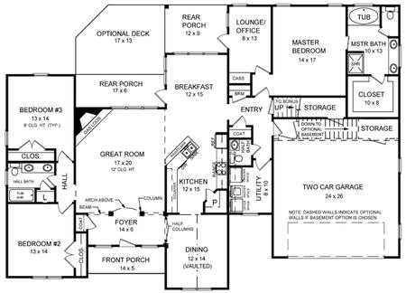
Description: This versatile houseplan offers the features that many have asked for, including a very flexible design that can accommodate 3 or 4 bedrooms and 2 1/2 - 3 1/2 baths. Open plan with split-bedroom arrangement. Large garage with plenty of room for vehicles. Expansive master suite with lounge, jet tub, walk-in shower, and large closet. Large bonus room over the garage for hobbies, children, or grandchildren. Come home to The Ridgewood today! |
Bedrooms : |
3 |
Baths : |
2.5 |
Width : |
74' 0" |
Depth : |
51' 0" |
Main Ceiling Height: |
9 |
Roof Pitch: |
10 in 12 |
Secondary Roof Pitch: |
None |
Floors : |
1 |
1st Floor :
|
2251 sq. ft. |
Bonus Room: |
453 sq. ft. |
Total Living :
|
2251 sq. ft. |
Total Area :
|
3188 sq. ft. |
Garage Bays: |
2 |
Garage Type: |
Attached |
Foundation: Slab, Crawl Space |
Options: Reproducible / PDF, Right Reading Reverse, Material List, Mirror Reading Reverse, Color Rendering, Modifications, CAD Files |
|

 |
|
|