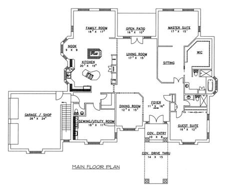
Plan Number:
 |
SD-5035-162
 |
| Description: *Insulated Concrete Form
*Concrete Patio
*Sewing/Utility Room
*2 Car Garage
*Covered Entry Porch
*2 Walk-In Closets
*Large Living Room
*Kitchen Island |
| Bedrooms : |
3 |
| Baths : |
3.5 |
| Width : |
90' 6" |
| Depth : |
76' 0" |
| Main Ceiling Height: |
9 |
| Roof Pitch: |
7 in 12 |
| Secondary Roof Pitch: |
None |
| Floors : |
1 |
| 1st Floor :
|
3235 sq. ft. |
| Other Room: |
1240 sq. ft. |
| Total Living :
|
4475 sq. ft. |
| Total Area :
|
5173 sq. ft. |
| Garage Bays: |
2 |
| Garage Type: |
Attached |
Foundation: Crawl Space |
Options: Reproducible / PDF, Right Reading Reverse, Mirror Reading Reverse, Color Rendering, Modifications, CAD Files |
| |

 |
|
|