Plan Number:
 |
SD-5111-64
 |
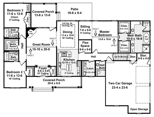
Description: What style! What features! This 3 bedroom, split/open floorplan, with a bonus room over garage, includes many of the "most requested" features. Key features include an expansive master suite with a vaulted ceiling and sitting area, twin walk-in closets, jet tub, and 4' x 4' shower. The fully-appointed kitchen includes a large island, raised-bar, easy-access to the "flex" space, large dining area, and well-placed laundry. The 2-bedroom wing functions well with oversized bedrooms (each with
their own bath), large closets, and easy access to a centrally-located media room. The expansive garage easily accommodates large vehicles and includes both open and closed storage. A wonderfully flexible house plan! |
Bedrooms : |
3 |
Baths : |
3.5 |
Width : |
78' 0" |
Depth : |
58' 6" |
Main Ceiling Height: |
9 |
Other Ceiling Height: |
8 |
Roof Pitch: |
10 in 12 |
Secondary Roof Pitch: |
12 in 12 |
Floors : |
2 |
1st Floor :
|
2200 sq. ft. |
Total Living :
|
2200 sq. ft. |
Total Area :
|
3248 sq. ft. |
Garage Bays: |
2 |
Garage Type: |
Attached |
Foundation: Slab, Crawl Space |
Options: Reproducible / PDF, Right Reading Reverse, Material List, Mirror Reading Reverse, Color Rendering, Modifications, CAD Files |
|

 |
|
|