Plan Number:
 |
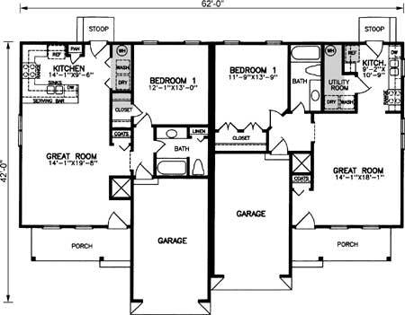
SD-5215-70
 |
| Description: 1 story, 1 bedroom, 1 bath, Great Room, kitchen bar, 1-car garage |
| Bedrooms : |
1 |
| Baths : |
1 |
| Width : |
62' 0" |
| Depth : |
42' 0" |
| Main Ceiling Height: |
8 |
| Roof Pitch: |
7 in 12 |
| Secondary Roof Pitch: |
4 in 12 |
| Floors : |
1 |
| 1st Floor :
|
829 sq. ft. |
| Total Living :
|
1608 sq. ft. |
| Total Area :
|
0 sq. ft. |
| Garage Bays: |
1 |
| Garage Type: |
Attached |
Foundation: Slab, Crawl Space, Basement Additional Charge, Standard Basement |
Options: Reproducible / PDF, Right Reading Reverse, Material List, Mirror Reading Reverse, Color Rendering, Modifications |
| |

 |
|
|