Plan Number:
 |
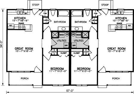
SD-5216-70
 |
| Description: 1 story, 1 bedroom, 1 bath, great room, kitchen pantry, breakfast counter, utility room, front porch, back stoop |
| Bedrooms : |
1 |
| Baths : |
1 |
| Width : |
57' 0" |
| Depth : |
43' 0" |
| Main Ceiling Height: |
8 |
| Roof Pitch: |
4 in 12 |
| Secondary Roof Pitch: |
10 in 12 |
| Floors : |
1 |
| 1st Floor :
|
873 sq. ft. |
| Total Living :
|
1746 sq. ft. |
| Total Area :
|
1968 sq. ft. |
| Garage Bays: |
0 |
| Garage Type: |
None |
Foundation: Crawl Space, Standard Basement |
Options: Reproducible / PDF, Right Reading Reverse, Material List, Mirror Reading Reverse, Color Rendering, Modifications |
| |

 |
|
|