Plan Number:
 |
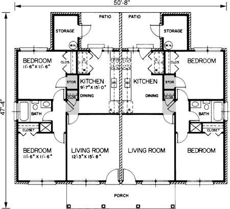
SD-5230-70
 |
| Description: 1 story duplex, 2 bedrooms, 1 bath, LR, kitchen/dining, W/D closet, outside storage rm, front porch, private back patio |
| Bedrooms : |
2 |
| Baths : |
1 |
| Width : |
50' 8" |
| Depth : |
47' 4" |
| Main Ceiling Height: |
8 |
| Roof Pitch: |
5 in 12 |
| Secondary Roof Pitch: |
Flat |
| Floors : |
1 |
| 1st Floor :
|
825 sq. ft. |
| Total Living :
|
1650 sq. ft. |
| Total Area :
|
2100 sq. ft. |
| Garage Bays: |
0 |
| Garage Type: |
None |
Foundation: Slab, Crawl Space, Basement Additional Charge, Standard Basement |
Options: Reproducible / PDF, Right Reading Reverse, Material List, Mirror Reading Reverse, Color Rendering, Modifications |
| |

 |
|
|