Plan Number:
 |
SD-5720-170
 |
| Description: Take a step back in time to an old Mississippi Plantation Home. A place where the joy of life itself filled the house and grounds around it with all the bustling activity that comes from running so large a self-sustaining home place. Hands toiled the fields, staff ran the house, children played throughout delighting in the daily pleasures surrounding them at the Melrose Plantation, their home forever, no matter where their future paths shall lead. |
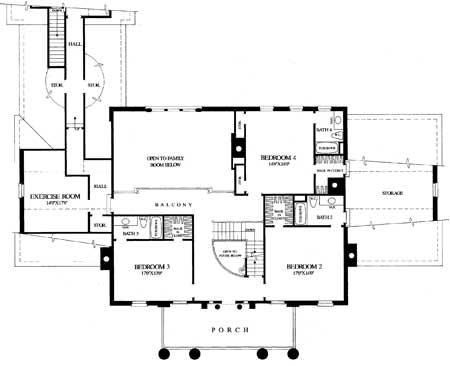
| Bedrooms : |
4 |
| Baths : |
4 |
| Width : |
92' 4" |
| Depth : |
112' 0" |
| Main Ceiling Height: |
11 |
| Other Ceiling Height: |
9 |
| Roof Pitch: |
10 in 12 |
| Secondary Roof Pitch: |
10 in 12 |
| Floors : |
2 |
| 1st Floor :
|
3749 sq. ft. |
| 2nd Floor :
|
1631 sq. ft. |
| Total Living :
|
5380 sq. ft. |
| Total Area :
|
5380 sq. ft. |
| Garage Bays: |
0 |
| Garage Type: |
Attached |
Foundation: Slab |
Options: Reproducible / PDF |
| |

 |
|
|