Plan Number:
 |
SD-6712-64
 |
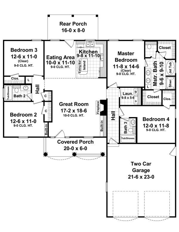
Description: This well-designed plan provides many amenities that you would expect to find in a much larger home. The master suite features a wonderful bathroom with his and hers separate closets. This plan also features a fourth bedroom with private bath, which is perfect for a guest room. The great room has gas logs as well as built-in cabinets and 10' ceilings that make it a great place to relax and spend time with family and friends. The rear patio provides a great space for those summer cookouts as well as being close to the kitchen. The two car garage features space for real-sized vehicles. This plan is the perfect solution to your family's needs!
|
Bedrooms : |
4 |
Baths : |
3.5 |
Width : |
55' 0" |
Depth : |
64' 4" |
Main Ceiling Height: |
9 |
Roof Pitch: |
10 in 12 |
Secondary Roof Pitch: |
None |
Floors : |
1 |
1st Floor :
|
1750 sq. ft. |
Total Living :
|
1750 sq. ft. |
Total Area :
|
2515 sq. ft. |
Garage Bays: |
2 |
Garage Type: |
Attached |
Foundation: Slab, Crawl Space |
Options: Reproducible / PDF, Right Reading Reverse, Material List, Mirror Reading Reverse, Color Rendering, Modifications, CAD Files |
|

 |
|
|