Plan Number:
 |
SD-7027-64
 |
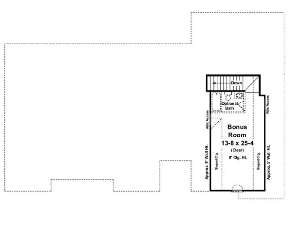
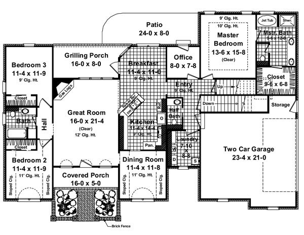
Description: This home offers a very functional split floor plan layout. The great room features 12-foot ceilings, cozy fireplace with gas logs, and welcoming transoms above the windows. Excellent views of the great room and back yard from kitchen. The expansive and well-appointed master suite includes a large walk-in closet, an oversized jet tub, separate shower, compartmentalized toilet and dual vanities. Other key features of the home include a home office, large utility room, and a large 2 car garage. The optional bonus room provides an excellent space for a playroom and even has room for an extra bath. This home truly has the flexibility and features that your family wants! |
Bedrooms : |
3 |
Baths : |
2.5 |
Width : |
72' 0" |
Depth : |
48' 0" |
Main Ceiling Height: |
9 |
Other Ceiling Height: |
12 |
Roof Pitch: |
10 in 12 |
Secondary Roof Pitch: |
12 in 12 |
Floors : |
1 |
1st Floor :
|
1955 sq. ft. |
Total Living :
|
1955 sq. ft. |
Total Area :
|
3225 sq. ft. |
Garage Bays: |
2 |
Garage Type: |
Attached |
Foundation: Standard Basement |
Options: Reproducible / PDF, Right Reading Reverse, Material List, Mirror Reading Reverse, Color Rendering, Modifications, CAD Files |
|

 |
|
|