Plan Number:
 |
SD-7029-64
 |
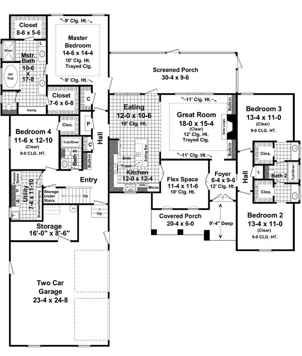
Description: This inviting home has European Country styling with upscale features. The large front and rear porches add plenty of usable outdoor living space, and include easy rear access to the master suite. Expansive great room includes a beautiful trayed ceiling and features built-in cabinets and a gas fireplace. The spacious kitchen features an oversized island with a large eating bar and breakfast area. The hall bath is equipped with dual lavatories for convenience. The master bedroom has a raised ceiling and opens into the well-equipped bath with dual lavatories, oversized jet tub, and large his and her walk-in closets. There is a storage area off the garage for projects and storage. This house also features a Study that could be used as a home office, dining room, or playroom. This is a very flexible home with plenty of options to choose from. An excellent floorplan layout and a great value for your family! |
Bedrooms : |
4 |
Baths : |
3 |
Width : |
71' 8" |
Depth : |
79' 4" |
Main Ceiling Height: |
9 |
Other Ceiling Height: |
8 |
Roof Pitch: |
12 in 12 |
Secondary Roof Pitch: |
10 in 12 |
Floors : |
1 |
1st Floor :
|
2500 sq. ft. |
Total Living :
|
2500 sq. ft. |
Total Area :
|
2500 sq. ft. |
Garage Bays: |
2 |
Garage Type: |
Attached |
Foundation: Slab, Crawl Space |
Options: Reproducible / PDF, Right Reading Reverse, Material List, Mirror Reading Reverse, Color Rendering, Modifications, CAD Files |
|

 |
|
|