Plan Number:
 |
SD-7246-162
 |
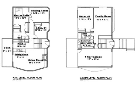
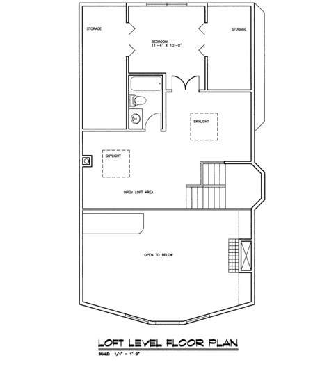
| Description: STANDARD FRAME,ONE CAR GARAGE, 3 FLOORS, OPEN LOFT W/SKYLIGHTS |
| Bedrooms : |
4 |
| Baths : |
3 |
| Width : |
26' 0" |
| Depth : |
48' 0" |
| Main Ceiling Height: |
8 |
| Other Ceiling Height: |
8 |
| Roof Pitch: |
8 in 12 |
| Secondary Roof Pitch: |
None |
| Floors : |
2 |
| 1st Floor :
|
1251 sq. ft. |
| 2nd Floor :
|
525 sq. ft. |
| Other Room: |
819 sq. ft. |
| Total Living :
|
2595 sq. ft. |
| Total Area :
|
2954 sq. ft. |
| Garage Bays: |
1 |
| Garage Type: |
Attached |
Foundation: Basement Additional Charge |
Options: Reproducible / PDF, Right Reading Reverse, Mirror Reading Reverse, Color Rendering, Modifications, CAD Files |
| |

 |
|
|