Plan Number:
 |
SD-7265-64
 |
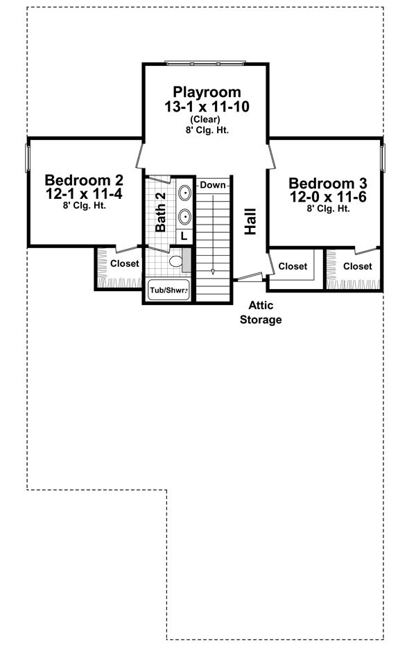
Description: This inviting home has craftsman styling with upscale features. The front and rear covered porches add usable outdoor living space. Great room features built in cabinets and a gas fireplace. The spacious kitchen has an island with an eating bar. The master bedroom opens into the well equipped bath with dual lavatories, corner tub, separate shower, and walk in closet. The flex space provides a perfect spot for the home office that you've always wanted. The two upstairs bedrooms share access to a large playroom area that could also be used as a gameroom. A bath with dual lavatories and compartmented tub & toilet is also provided. The two car garage opens into a private entrance and also features a large storage area. This is a very flexible home with lots of options. |
Bedrooms : |
3 |
Baths : |
2.5 |
Width : |
38' 6" |
Depth : |
68' 4" |
Main Ceiling Height: |
9 |
Other Ceiling Height: |
8 |
Roof Pitch: |
8 in 12 |
Secondary Roof Pitch: |
None |
Floors : |
2 |
1st Floor :
|
1424 sq. ft. |
2nd Floor :
|
680 sq. ft. |
Total Living :
|
2104 sq. ft. |
Total Area :
|
3067 sq. ft. |
Garage Bays: |
2 |
Garage Type: |
Attached |
Foundation: Slab, Crawl Space |
Options: Reproducible / PDF, Right Reading Reverse, Material List, Mirror Reading Reverse, Color Rendering, Modifications, CAD Files |
|

 |
|
|