Plan Number:
 |
SD-7613-64
 |
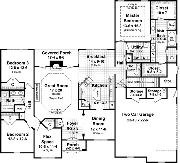
Description: This inviting home has European Country styling with upscale features. The front and rear covered porches add plenty of usable outdoor living space, and include that much-requested outdoor kitchen. Expansive great room includes 12' ceilings and features built-in cabinets and a gas fireplace. The spacious kitchen features an island, a large eating bar, and breakfast area. The master bedroom has a raised ceiling and opens into the well-equipped bath with dual lavatories, oversized jet tub, and large his and her walk-in closets. Space is also provided for that home office that you've always wanted. A bonus room also provides a perfect place for storage or future expansion. This is a very flexible home with plenty of options to choose from. Make this your family's next home! |
Bedrooms : |
3 |
Baths : |
2.5 |
Width : |
68' 0" |
Depth : |
72' 10" |
Main Ceiling Height: |
9 |
Roof Pitch: |
8 in 12 |
Secondary Roof Pitch: |
12 in 12 |
Floors : |
1 |
1st Floor :
|
2418 sq. ft. |
Total Living :
|
2418 sq. ft. |
Total Area :
|
3930 sq. ft. |
Garage Bays: |
2 |
Garage Type: |
Attached |
Foundation: Standard Basement |
Options: Reproducible / PDF, Right Reading Reverse, Material List, Mirror Reading Reverse, Color Rendering, Modifications, CAD Files |
|

 |
|
|