Plan Number:
 |
SD-7733-162
 |
| Description: STANDARD FRAME
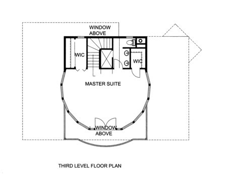
MASTER ON THIRD FLOOR
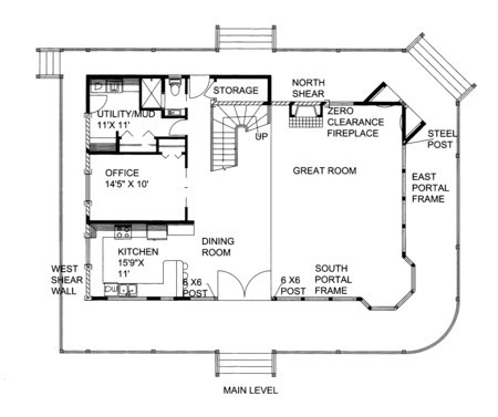
STORAGE
COVERED PORCH
OFFICE, UTILITY/MUD ROOM
DINING,GREAT ROOM
|
| Bedrooms : |
2 |
| Baths : |
2.5 |
| Width : |
58' 6" |
| Depth : |
46' 0" |
| Main Ceiling Height: |
8 |
| Other Ceiling Height: |
9 |
| Roof Pitch: |
9 in 12 |
| Secondary Roof Pitch: |
6 in 12 |
| Floors : |
2 |
| 1st Floor :
|
1513 sq. ft. |
| 2nd Floor :
|
801 sq. ft. |
| Other Room: |
623 sq. ft. |
| Total Living :
|
2937 sq. ft. |
| Total Area :
|
2937 sq. ft. |
| Garage Bays: |
0 |
| Garage Type: |
None |
Foundation: Crawl Space |
Options: Reproducible / PDF, Right Reading Reverse, Mirror Reading Reverse, Color Rendering, Modifications, CAD Files |
| |

 |
|
|