Plan Number:
 |
SD-7861-64
 |
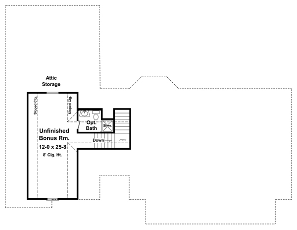
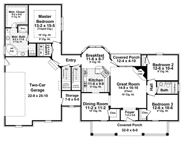
Description: This beautiful country-styled home offers a very functional split floorplan layout. The great room features 10-foot ceilings and cozy fireplace with gas logs. Excellent views of the great room and back yard from kitchen. The expansive and well-appointed master suite includes a large walk-in closet, an oversized jet tub, separate shower, compartmentalized toilet and dual vanities. A large 2 car garage with separate storage is provided and the optional bonus room is an excellent space for a playroom and even has room for an extra bath. The full basement offers a great space for future expansion or additional storage. This home truly has the flexibility and features that your family wants! |
Bedrooms : |
3 |
Baths : |
2 |
Width : |
70' 8" |
Depth : |
53' 10" |
Main Ceiling Height: |
9 |
Other Ceiling Height: |
8 |
Roof Pitch: |
12 in 12 |
Secondary Roof Pitch: |
10 in 12 |
Floors : |
1 |
1st Floor :
|
1624 sq. ft. |
Total Living :
|
1624 sq. ft. |
Total Area :
|
3059 sq. ft. |
Garage Bays: |
2 |
Garage Type: |
Attached |
Foundation: Standard Basement |
Options: Reproducible / PDF, Right Reading Reverse, Material List, Mirror Reading Reverse, Color Rendering, Modifications, CAD Files |
|

 |
|
|