Plan Number:
 |
SD-7866-64
 |
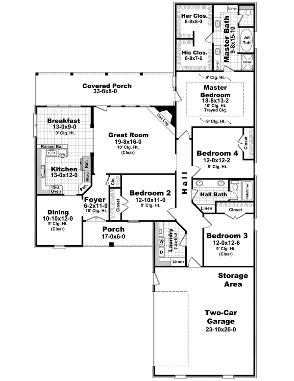
Description: Looking for the house that has it all? Then look no further. This beautiful country design features all the things that make a house a home. Four over-sized bedrooms are complimented by large closets, and the flex space provides a perfect spot for that home office, playroom, or fourth bedroom. A formal dining room, breakfast area, and raised bar all provide spaces for those family meals with close access to the fully equipped kitchen. The great room includes gas logs, raised ceilings, and beautiful views to the covered rear porch beyond. The master bedroom features trayed ceilings and the master bathroom leaves nothing to be desired. The expansive garage provides plenty of room for oversized trucks and SUV's and also includes a large storage area. This is the perfect home for you and your family! |
Bedrooms : |
4 |
Baths : |
2 |
Width : |
53' 0" |
Depth : |
90' 0" |
Main Ceiling Height: |
9 |
Other Ceiling Height: |
10 |
Roof Pitch: |
12 in 12 |
Secondary Roof Pitch: |
4 in 12 |
Floors : |
1 |
1st Floor :
|
2300 sq. ft. |
Total Living :
|
2300 sq. ft. |
Total Area :
|
3316 sq. ft. |
Garage Bays: |
2 |
Garage Type: |
Attached |
Foundation: Slab, Crawl Space |
Options: Reproducible / PDF, Right Reading Reverse, Material List, Mirror Reading Reverse, Color Rendering, Modifications, CAD Files |
|

 |
|
|