House Plans
House plans, multifamily plans,garage plans,vacation homes,cabin plans,and more from The Southern Designer, LLC.
View home design CartShopping Cart Check your house plan order shipping statusShipping Status Email Us
Return To House Plans, Garage Plans, Multifamily Plans From The Southern Designer HomeCollections of House Plans, garage plans, multifamily plans.New House PlansMultifamily Home PlansPopular Home PlansGarage PlansDesigner Log InContact The Southern Designer
About Our House Plans Ordering House Plans Blueprints Include Home Design Pricing

Easy House Plan Search
House Plans 1000-1500
House Plans 1501-2000
House Plans 2001-2500
House Plans 2501-3000
House Plans 3001-3500
House Plans 3501-4000
House Plans 4001-4500
House Plans 4501 and up

Search for House Plans By Style
Country House Plans
Traditional House Plans
French House Plans
Acadian House Plans
A-Frame House Plans
Bungalo House Plans
Cape Cod House Plans
Colonial House Plans
Contemporary House Plans
Cottage House Plans
Craftsman House Plans
Early American House Plans
European House Plans
Florida House Plans
Georgian House Plans
Mediterranean Home Designs
Prarie Home Designs
Ranch Home Designs
Spanish Home Plans
Victorian Home Designs




Credit Card Processing

Top Real Estate Sites  



Plan Number:
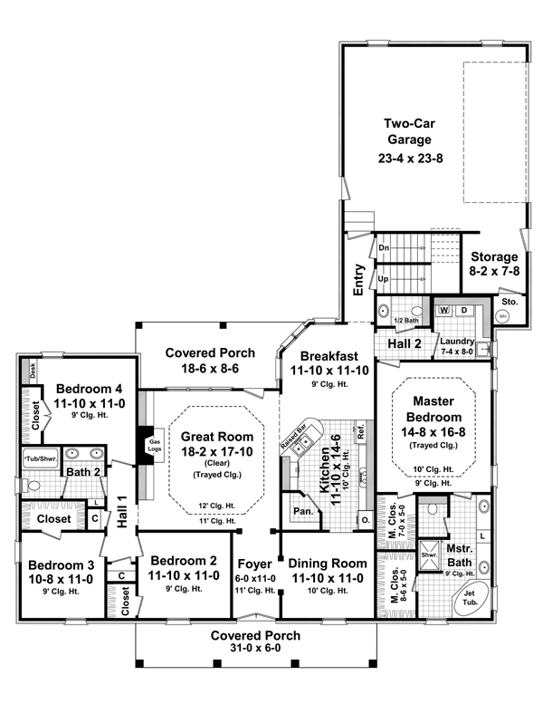
SD-7868-64
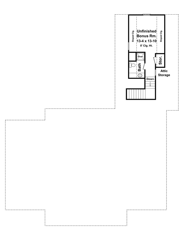
Description: This well-designed plan provides many amenities that you would expect to find in a much larger home. The master suite features a wonderful bathroom with large walk-in closets. The great room has gas logs as well as built-in cabinets and 12' trayed ceilings that make it a great place to relax and spend time with family and friends. The rear covered porch provides a great space for those summer cookouts as well as being close to the kitchen. A dining room and breakfast area are provided for formal or informal meals. The always popular bonus room provides an excellent space for storage or future expansion. The two car garage features space for real-sized vehicles. This plan is the perfect solution to your family's needs.
Bedrooms : 4
Baths : 2.5
Width : 65'  6"
Depth : 80'  0"
Main Ceiling Height: 9
Roof Pitch: 8 in 12
Secondary Roof Pitch: 14 in 12
Floors : 1
1st Floor : 2218 sq. ft.
Total Living : 2218 sq. ft.
Total Area : 3635 sq. ft.
Garage Bays: 2
Garage Type: Attached
Foundation:
Standard Basement
Options:
Reproducible / PDF, Right Reading Reverse, Material List, Mirror Reading Reverse, Color Rendering, Modifications, CAD Files
 


Five Sets Additional Sets Reverse Sets Material List Reproducibles / PDF CAD Files
$835.00 $55.00 $150.00 $120.00 $1,005.00 $1,505.00

 
All content is copyright © 2012 by The Southern Designer, LLC .
ALL SALES FINAL