Plan Number:
 |
SD-8224-162
 |
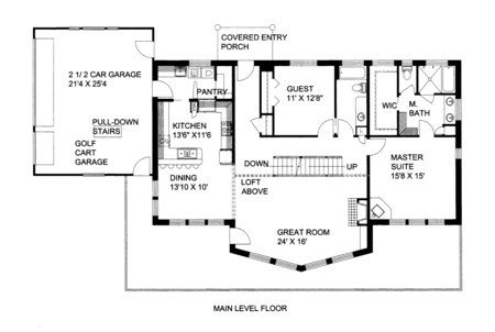
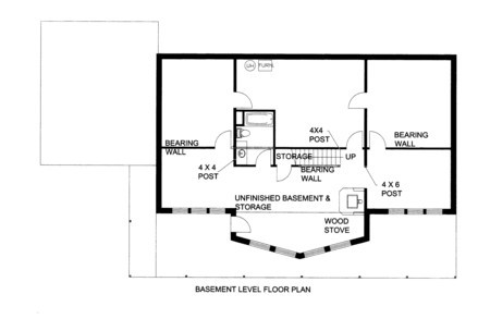
| Description: Insulated concrete forms, dining room, loft open to below, deck, unfinished basement and wood stove. |
| Bedrooms : |
2 |
| Baths : |
4 |
| Width : |
77' 8" |
| Depth : |
44' 6" |
| Main Ceiling Height: |
8 |
| Other Ceiling Height: |
10 |
| Roof Pitch: |
10 in 12 |
| Secondary Roof Pitch: |
None |
| Floors : |
2 |
| 1st Floor :
|
1855 sq. ft. |
| 2nd Floor :
|
330 sq. ft. |
| Other Room: |
1855 sq. ft. |
| Total Living :
|
4040 sq. ft. |
| Total Area :
|
4569 sq. ft. |
| Garage Bays: |
2 |
| Garage Type: |
Attached |
Foundation: Standard Basement |
Options: Reproducible / PDF, Right Reading Reverse, Mirror Reading Reverse, Modifications |
| |

 |
|
|