Plan Number:
 |
SD-8671-64
 |
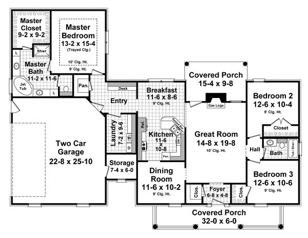
Description: This beautiful country-styled home offers a very functional split floorplan layout. The great room features 10-foot ceilings and cozy fireplace with gas logs. Excellent views of the great room and back yard from kitchen. The expansive and well-appointed master suite includes a large walk-in closet, an oversized jet tub, separate shower, compartmentalized toilet and dual vanities. A large 2 car garage with separate storage is provided. This home truly has the flexibility and features that your family wants! |
Bedrooms : |
3 |
Baths : |
2 |
Width : |
70' 8" |
Depth : |
53' 10" |
Main Ceiling Height: |
9 |
Roof Pitch: |
10 in 12 |
Secondary Roof Pitch: |
14 in 12 |
Floors : |
1 |
1st Floor :
|
1804 sq. ft. |
Total Living :
|
1804 sq. ft. |
Total Area :
|
2770 sq. ft. |
Garage Bays: |
2 |
Garage Type: |
Attached |
Foundation: Slab, Crawl Space |
Options: Reproducible / PDF, Right Reading Reverse, Material List, Mirror Reading Reverse, Color Rendering, Modifications, CAD Files |
|

 |
|
|