Plan Number:
 |
SD-9109-162
 |
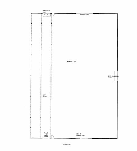
| Description: 15' BAY DOOR
WITH FUTURE HORSE STALLS
LOFT ABOVE 7'7"
STALL HEIGHT 11'8"
9' X 10', 12' X 10" OVERHEAD DOOR
|
| Width : |
104' 0" |
| Depth : |
150' 0" |
| Main Ceiling Height: |
20 |
| Roof Pitch: |
4 in 12 |
| 1st Floor :
|
15600 sq. ft. |
| Total Usable Space :
|
0 sq. ft. |
| Total Area :
|
15600 sq. ft. |
| Garage Bays: |
0 |
| Garage Type: |
Apartment |
Foundation: Slab |
Options: Reproducible / PDF, Right Reading Reverse, Mirror Reading Reverse, CAD Files |
| |

 |
|
|