Plan Number:
 |
SD-9403-64
 |
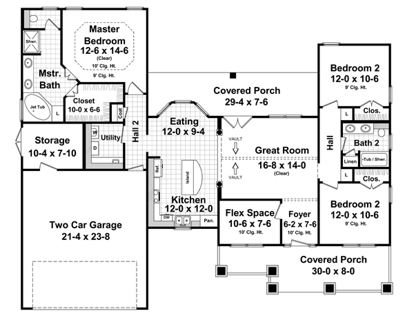
Description: This inviting home has craftsman styling with an abundance of upscale features. The front and rear covered porches add great spaces for outdoor entertainment and relaxation. The great room features a vaulted ceiling and built in cabinets with a gas fireplace. The well-equipped kitchen has a large island with an eating bar. The hall bath is equipped with dual lavatories for convenience. The master bedroom has a raised ceiling and opens into the well equipped bath with dual lavatories, corner tub and walk in closet. There is a shop area off the garage for projects and storage. The flex space provides a great space for that home office that you've always wanted. This is a very flexible home with lots of options to suit your family's needs.
|
Bedrooms : |
3 |
Baths : |
2 |
Width : |
64' 0" |
Depth : |
52' 2" |
Main Ceiling Height: |
8 |
Other Ceiling Height: |
9 |
Roof Pitch: |
8 in 12 |
Secondary Roof Pitch: |
12 in 12 |
Floors : |
1 |
1st Floor :
|
2649 sq. ft. |
Total Living :
|
1619 sq. ft. |
Total Area :
|
2649 sq. ft. |
Garage Bays: |
2 |
Garage Type: |
None |
Foundation: Slab, Crawl Space |
Options: Reproducible / PDF, Right Reading Reverse, Material List, Mirror Reading Reverse, Color Rendering, Modifications, CAD Files |
|

 |
|
|