Plan Number:
 |
SD-9713-64
 |
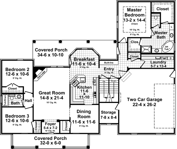
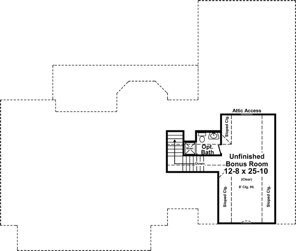
Description: This beautiful country-styled home offers a very functional split floorplan layout. The great room features 10-foot ceilings and cozy fireplace with gas logs. The kitchen offers excellent views of the great room and back yard. The expansive and well-appointed master suite includes two large walk-in closets, an oversized jet tub, separate shower, compartmentalized toilet and dual vanities. A large 2 car garage with separate storage is provided and the optional bonus room is an excellent space for a playroom and even has room for an extra bath. This home truly has the flexibility and features that your family wants! |
Bedrooms : |
3 |
Baths : |
2 |
Width : |
71' 0" |
Depth : |
60' 0" |
Main Ceiling Height: |
9 |
Roof Pitch: |
10 in 12 |
Secondary Roof Pitch: |
14 in 12 |
Floors : |
1 |
1st Floor :
|
1925 sq. ft. |
Bonus Room: |
433 sq. ft. |
Total Living :
|
1925 sq. ft. |
Total Area :
|
3557 sq. ft. |
Garage Bays: |
2 |
Garage Type: |
Attached |
Foundation: Standard Basement |
Options: Reproducible / PDF, Right Reading Reverse, Material List, Mirror Reading Reverse, Color Rendering, Modifications, CAD Files |
|

 |
|
|