Plan Number:
 |
SD-9718-64
 |
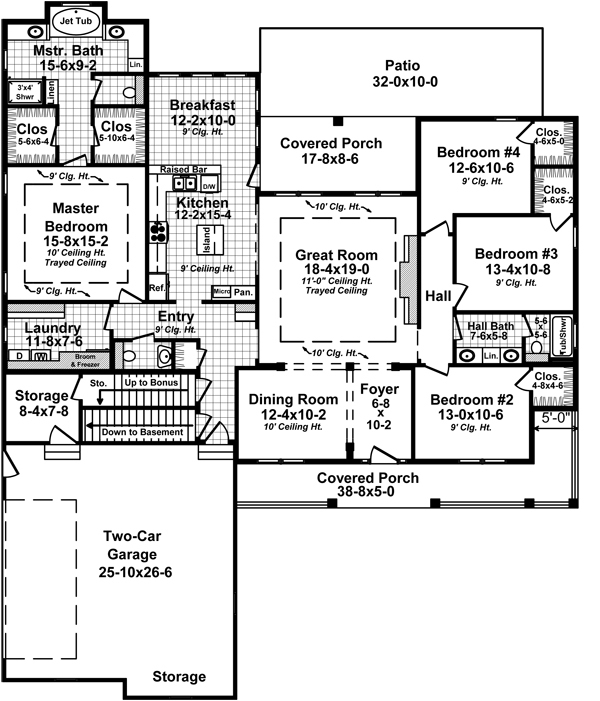
Description: This beautiful design offers traditional neighborhood styling along with great floor plan features. The great room features a trayed ceiling, built-in cabinets, and excellent views. A well-equipped kitchen offers easy access to the formal dining room as well as the casual breakfast area. The expansive and well-appointed master suite includes a trayed ceiling, his and hers walk-in closets, an oversized garden tub, separate shower, compartmentalized toilet and dual vanities. Three other bedrooms each have a walk-in closet and share a second bath. The bonus room provides a great space for a gameroom or home office and even has space for an optional bath. A large 2 car garage with separate storage is also provided. The functional floorplan and attractive exterior combine to make this a plan that you and your family can be proud to call home. |
Bedrooms : |
4 |
Baths : |
2.5 |
Width : |
65' 2" |
Depth : |
79' 0" |
Main Ceiling Height: |
9 |
Roof Pitch: |
10 in 12 |
Secondary Roof Pitch: |
3 in 12 |
Floors : |
1 |
1st Floor :
|
2410 sq. ft. |
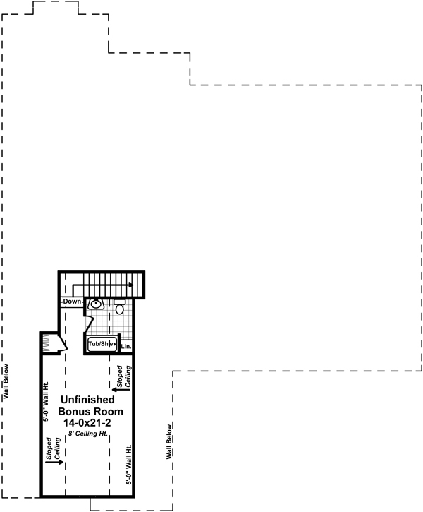
Bonus Room: |
442 sq. ft. |
Total Living :
|
2410 sq. ft. |
Total Area :
|
4137 sq. ft. |
Garage Bays: |
2 |
Garage Type: |
Attached |
Foundation: Standard Basement |
Options: Reproducible / PDF, Right Reading Reverse, Material List, Mirror Reading Reverse, Color Rendering, Modifications, CAD Files |
|

 |
|
|