Plan Number:
 |
SD-9806-64
 |
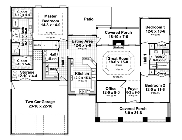
Description: This beautiful Craftsman design features all the things that make a house a home. Three over-sized bedrooms are complimented by large closets and a home office space is also provided. A breakfast area, and raised bar all provide spaces for those family meals with close access to the fully equipped kitchen. The great room includes gas logs, a trayed ceiling, and beautiful views to the covered rear porch beyond. The master bedroom also features trayed ceilings and the master bathroom leaves nothing to be desired. The garage provides plenty of room for oversized trucks and SUV's and also includes a large storage area. The bonus room provides space for future expansion or for additional storage. This is the perfect home for you and your family! |
Bedrooms : |
3 |
Baths : |
2.5 |
Width : |
68' 0" |
Depth : |
55' 0" |
Main Ceiling Height: |
9 |
Roof Pitch: |
8 in 12 |
Secondary Roof Pitch: |
12 in 12 |
Floors : |
1 |
1st Floor :
|
1902 sq. ft. |
Total Living :
|
1902 sq. ft. |
Total Area :
|
3368 sq. ft. |
Garage Bays: |
2 |
Garage Type: |
Attached |
Foundation: Slab, Crawl Space |
Options: Reproducible / PDF, Right Reading Reverse, Material List, Mirror Reading Reverse, Color Rendering, Modifications, CAD Files |
|

 |
|
|