Plan Number:
 |
SD-9811-64
 |
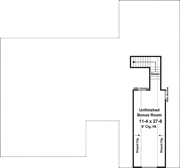
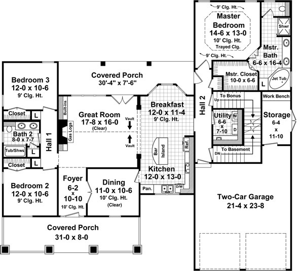
Description: Looking for the house that has it all? Then look no further. This beautiful Craftsman design features all the things that make a house a home. A breakfast area and raised bar all provide spaces for those family meals with close access to the fully equipped kitchen. The kitchen is also easily accessible from the separate formal dining room. The great room includes gas logs, a vaulted ceiling, and beautiful views to the covered rear porch beyond. The master bedroom also features trayed ceilings, while the master bathroom leaves nothing to be desired. The garage features a large storage area that can be used as a workshop. The bonus room provides space for future expansion or for additional storage. This is the perfect home for you and your family! |
Bedrooms : |
3 |
Baths : |
2 |
Width : |
65' 0" |
Depth : |
60' 8" |
Main Ceiling Height: |
9 |
Roof Pitch: |
8 in 12 |
Secondary Roof Pitch: |
12 in 12 |
Floors : |
1 |
1st Floor :
|
1816 sq. ft. |
Total Living :
|
1816 sq. ft. |
Total Area :
|
3384 sq. ft. |
Garage Bays: |
2 |
Garage Type: |
Attached |
Foundation: Standard Basement |
Options: Reproducible / PDF, Right Reading Reverse, Material List, Mirror Reading Reverse, Color Rendering, Modifications, CAD Files |
|

 |
|
|