Plan Number:
 |
SD-9820-64
 |
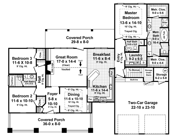
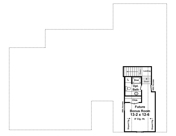
Description: Looking for the house that has it all? Then look no further. This beautiful Craftsman design features all the things that make a house a home. Three bedrooms are complimented by large closets. A breakfast area, and raised bar all provide spaces for those family meals with close access to the fully equipped kitchen. The great room includes gas logs, a vaulted ceiling, and beautiful views to the covered rear porch beyond. The master bedroom also features a trayed ceiling and leaves nothing to be desired. The expansive garage provides plenty of room for oversized trucks and SUV's and also includes a large storage area. The bonus room provides space for future expansion or for additional storage. This is the perfect home for you and your family! |
Bedrooms : |
3 |
Baths : |
2.5 |
Width : |
69' 0" |
Depth : |
56' 0" |
Main Ceiling Height: |
9 |
Roof Pitch: |
8 in 12 |
Secondary Roof Pitch: |
12 in 12 |
Floors : |
1 |
1st Floor :
|
1900 sq. ft. |
Bonus Room: |
328 sq. ft. |
Total Living :
|
1900 sq. ft. |
Total Area :
|
3400 sq. ft. |
Garage Bays: |
2 |
Garage Type: |
Attached |
Foundation: Slab, Crawl Space |
Options:
|
|

 |
|
|