Plan Number:
 |
SD-7273-64
 |
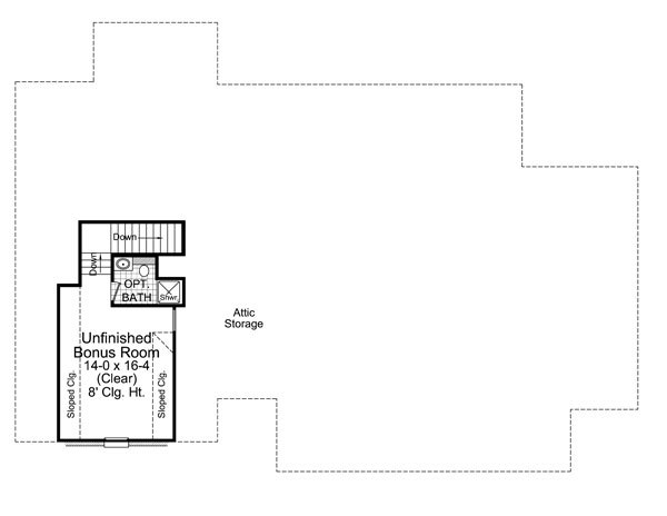
Description: This ever popular French Country home showcases beautiful exterior style as well as a floorplan packed with great features. The great room features a gas log fireplace flanked by built-in cabinets and 10' ceilings. The well-equipped kitchen contains all the modern amenities as well as a large walk-in pantry for storage. Two over-sized bedrooms, each with a large closet, share a bath complete with dual lavatories. The master suite includes a trayed ceiling, large walk-in closet, and bath with all the extras. The first floor also has a space for that much desired home office. Future space upstairs has a bath room and a bonus space perfect for a playroom, extra bedroom, or just extra storage. This truly is the perfect plan for you and your family. |
Bedrooms : |
3 |
Baths : |
2.5 |
Width : |
77' 0" |
Depth : |
55' 6" |
Main Ceiling Height: |
9 |
Other Ceiling Height: |
8 |
Roof Pitch: |
9 in 12 |
Secondary Roof Pitch: |
12 in 12 |
Floors : |
1 |
1st Floor :
|
2401 sq. ft. |
Total Living :
|
2401 sq. ft. |
Total Area :
|
3821 sq. ft. |
Garage Bays: |
2 |
Garage Type: |
Attached |
Foundation: Slab, Crawl Space |
Options: Reproducible / PDF, Right Reading Reverse, Material List, Mirror Reading Reverse, Color Rendering, Modifications, CAD Files |
|

 |
|
|